Programado corte en la iluminación de la vía pública del entorno de la plaza Juan Paco Baeza

Se realizarán trabajos para arreglar una avería producida anoche en el transformador de la zona por un incendio cercano

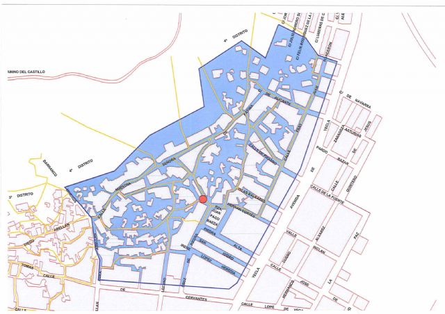
El entorno de la Plaza Juan Paco Baeza sufrirá esta noche un corte de suministro eléctrico en la iluminación de la vía pública. Técnicos de Iberdrola realizarán diferentes trabajos para solucionar una avería en el transformador situado en esta plaza, por lo que el corte se producirá en todas las calles adyacentes, desde Cervantes hacia el Norte y desde avenida Yecla hacia el Oeste, en la zona del Distrito Cuarto. Está previsto que mañana por la tarde el problema esté solucionado.

La avería la ha provocado un incendio de varios colchones y un frigorífico producido anoche junto al transformador, a la altura del número 9 de la plaza. Hasta el lugar se trasladó la Policía local y una dotación de Bomberos tras recibir llamada el 112 a las 3.30 horas de la madrugada. Igualmente se desplazaron técnicos de Iberdrola, cuyos trabajos van a permitir que el corte no sea necesario en la iluminación de las viviendas.

Este sitio web utiliza cookies para facilitar y mejorar la navegación. Si continúas navegando, consideramos que aceptas su uso. POLITICA DE COOKIES